Ermita de Santiago (Bañón)

De Xilocapedia
Ir a la navegación Ir a la búsqueda
Vista pies
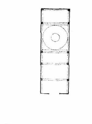
Plano de la ermita

Ubicada en la localidad de Bañón. Obra de mampostería de nave única con cinco tramos de los cuales el cuarto es el más ancho a modo de crucero. La cubierta es de bóveda de cañón con lunetos y cúpula en el crucero. Es una construcción del siglo XVII. Al exterior el tramo de crucero es más elevado con linterna. Portada de medio punto de sillería. Se encuentra en estado de ruina al haberse caído gran parte de la cubierta y un muro lateral.


Bibliografía