Masía de las Monjas (Ojos Negros)

De Xilocapedia
Ir a la navegación Ir a la búsqueda
Vista general masada
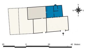
Croquis de la planta

Masía de la localidad de Ojos Negros. Conjunto con planta rectangular alargado en sentido O - E, en el cual han desaparecido bastantes construcciones del núcleo original (extremo O), estaba formado al menos por una vivienda - casa, cuadras, paridera y corrales.

El sistema constructivo se basa en el uso de la mampostería, con tabiques de adobe y piedras con yeso, forjados de madera y revoltones de yeso.

La vivienda, que prácticamente ha desaparecido para ser transformada en paridera) se ubica en el lado E del complejo, tiene planta rectangular, con al menos dos pisos en origen y acceso desde el lado S (a través del patio - corral). En la planta baja se localiza en patio, con las escaleras de acceso a la planta superior; una o dos salas; la cocina con hogar, chimenea y trasfuego, y la boquera del horno de pan cocer en el lateral de la chimenea, que se traduce al exterior en el muro N, con una construcción de mampostería cuadrangular; la cuadra, con acceso desde el patio, contaba con numerosos pesebres para caballerías y se comunica directamente con la paridera por el muro O. En la planta primera se localizarían las habitaciones y / o los graneros y zonas de almacenaje.

La transformación de la vivienda en paridera provocó la desaparición de buena parte de la división interna de la misma, aunque se han conservado importantes restos que ayudar a reconstruir la estructura de forma bastante real. Se ha conservado un par de muros en forma de L en los que se han documentado restos de la chimenea, trasfuego y hogar (perforados por una puerta en la actualidad). La boquera del horno se conserva con la piedra de la base. En estos muros y en parte de los restantes, se conservan los enlucidos con marcas de los tabiques y cielos rasos, además, se documentan interesantes grafitos en los mismos. Un grupo de estos grafitos está realizado con pintura de color almagra y se localiza en varios de los muros. La temática de estos grafitos es variada, siendo muchos de ellos restos fragmentarios de difícil adscripción. Entre los más destacados citar varias cruces con remates pometeados, concretamente se han localizado 4 cruces, dos de ellas juntas (una grande y otra pequeña) y las otras más separadas. El motivo más destacado es un gran círculo que en su interior representa un elemento vegetal (arboriforme) y otro solar, con una serie de líneas ondulantes paralelas colocadas en vertical sobre cuyos vértices altos aparecen cruces latinas. Otro motivo representa a modo de un símbolo solar (asterisco) rodeado por un círculo. En la parte alta del pilar central de la vivienda se lee "AÑO 1936".

Además de los grafitos a la almagra hay otros incisos y a carboncillo en los que figuran numerosas fechas, líneas de conteo, ... Sobre la puerta de acceso a la vivienda se lee "1955 ABRIL", que quizá corresponda con la fecha de reforma de la vivienda y transformación en paridera, y dos números impresos, uno es el 43 (en la viga sobre la puerta) y otro el 114 (en el marco superior de la misma).

Al O se localizan una paridera con acceso desde otro corral que se ubica delante de la misma, y más al O, una serie de construcciones en ruina total de las que apenas quedan los cimientos

Al S del complejo se localiza un gran majadal, con piedras de gran tamaño dispersas y otros elementos relacionados con la explotación ganadera. En la zona NE se localiza lo que parece un viejo pajar, quizá de la masada, que actualmente se encuentra rodeado por unas naves y corral modernos. Al SE se localiza una paridera con un corral.

Datos históricos

Casa de labor citada en el nomenclátor de 1860 a 5 km de la localidad, con una vivienda de tres plantas habitada temporalmente.

Aparece en los mapas topográficos de 1938 y 1942 como "masía de las Monjas"


Bibliografía

  • Cuerpo del Estado Mayor (1938): Mapa nacional. Hoja 516-III. Ojos Negros [Material Cartográfico]. [s.l.]. Instituto Geográfico. (Escala 1:25.000).
  • Instituto Geográfico Catastral (1942): Mapa topográfico. Hoja 516. Monreal del Campo [Material Cartográfico]. Instituto Geográfico (Escala 1:50.000).