Molino de viento (Ojos Negros)

De Xilocapedia
Ir a la navegación Ir a la búsqueda
Vista General
Plano del molino

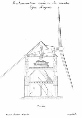
Molino de viento, de torre mediterránea, cubierta con forma cónica y bastante peraltada, siendo toda ella de madera. Esta ubicado en Ojos Negros. Por su tipología se le puede datar entre los siglos XVI y XVII. Posee dos plantas, la primera recibe el nombre de camareta, se trata de una habitación de tránsito en la que se guardaban diversos útiles como los lienzos, las aspas, las sogas, las cuñas etc. la alacena excavada en el muro servía para este fin. La escalera que asciende de la planta primera estaba situada en la proyección de la de la planta baja. La planta segunda o moledero es la más importante, puesto que albergaba la maquinaria de molienda. Presenta tres ventanas, con la finalidad de averiguar la dirección del viento y orientar las aspas, moviendo la totalidad de la cubierta. La maquinaria está formada por las aspas, en número de dos, el eje que se encuentra apoyado en las piedras bóllega y rebote, la rueda catalina, rueda dentada, unida firmemente al eje y que rueda con éste, la linterna atravesada por el barrón y, por último, la piedra que gira denominada volandera y, debajo de esta piedra, la solera que es fija y se apoya en una bancada de obra.

Bibliografía

  • NAVARRO ELOLA, Luis; SANCHEZ MARTIN, Luis (1992-96): ``Estudio socioeconómico de la comarca del Jiloca. Propuestas de desarrollo´´. Teruel, Teruel, 83-84 (II), pág. 7-200
  • Pallaruelo Campo, Severiano; Blazquez Herrero, Carlos (1999): Maestros del agua. Zaragoza, Diputación General de Aragón.