Fuente de Bañón
Fuente de Bañón, de tipología renacentista, construida posiblemente a mediados del XVI, ya que es muy similar a la que en el año 1560 se levantó en Celadas.
La fuente presenta forma de templete clásico, con dos pilastras acanaladas con capiteles dóricos muy planos sobre el que se dispone un arquitrabe con tres platabandas resaltadas sobre los capiteles. Sobre este hay un friso con un motivo decorativo de cartela en su centro. Se remata con un frontón triangular en cuyo tímpano se dispone una hornacina avenerada sobre la que se disponía un frontón que se ha perdido. El conjunto estaría rematado con varios motivos decorativos, conservando la huella de uno en el sillar de cornisa. Entre las pilastras se dispone un arco de medio punto cobijando los caños y el vaso, de sillería enlucido en cemento. Sobre este se disponía una barra de hierro para apoyo en la que se aprecia la inscripción " MIGV".
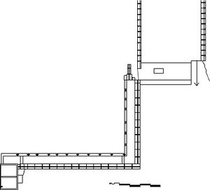
El vaso vierte al abrevadero, con planta en "L". Está construido en sillería con unión de grapas de cuñas. Se divide en tres partes: la primera desde la salida de agua del vaso de la fuente hasta 1/4 de la longitud del lado, la segunda, de menor anchura, hasta la unión en esquina con el otro lado perpendicular y una tercera perpendicular. Sobre el abrevadero se dispone un muro de sillería con remate triangular. Se conserva parte de la unión con el lavadero. Este está realizado también en sillería, con las lavaderas dispuestas a nivel del suelo. Este espacio se encuentra transformado ya que se dispuso un motor de elevación de agua en su vaso. Fue restaurada parcialmente en 1995, colocando algunos sillares de la cornisa, así como del remate del muro del abrevadero.
