Fuente vieja (Cucalón)

De Xilocapedia
Ir a la navegación Ir a la búsqueda
Fuente vieja
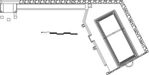
Plano de la fuente

La fuente e Cucalón ha sufrido numerosas reformas. En el segundo cuarto del S. XX presentaba un caño carente de cubierta, incrustado en un sillar con decoración incisa con los sillares que están frente a la fuente, de decoración oval inscrita en el sillar rectangular a modo de cartelas. Al interior consta de dos caños entre los que se dispone un relieve metálico en el que se ve la inscripción "Cucalón/Noviembre 1930/Alcalde/ Blas Herrero Gimeno". Éste parece el soporte cegado de un caño reformado. En 1950 se realizó una cubierta para esta fuente, con un arco de medio punto con línea de impostas prolongada en los laterales sobre los que se disponía algún tipo de remate decorativo que no se ha conservado quedando solamente la impronta de dos marcas circulares.

Posiblemente se encementara el abrevadero en estas fechas.

También de este momento es el lavadero, con el mismo vaso que se conserva en la actualidad pero cubierto por techumbre a un agua en dos de sus lados con vertiente al vaso. El conjunto actual presenta la fuente de mediados de siglo, un abrevadero completamente enlucido y un lavadero con cubierta a un agua. El vaso del lavadero, de gran anchura, dividido en dos partes y con lavaderas en sus cuatro lados. Esto es debido a que el muro de cierre se construye con la nueva cubierta. El conjunto termina con un vaso semicircular donde desagua el lavadero que recoge el agua a una acequia para los huertos.


Bibliografía