Iglesia parroquial de Barrachina

De Xilocapedia
Ir a la navegación Ir a la búsqueda
Iglesia parroquial
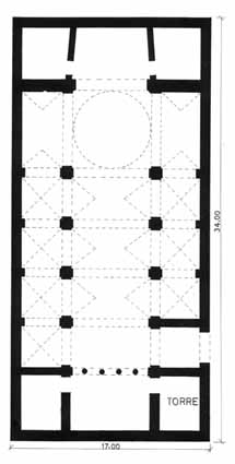
Plano de la iglesia

La Iglesia de la Asunción de Nuestra Señora de Barrachina es un edificio de mampostería de tres naves, con cuatro tramos, más el crucero y cabecera poligonal. La nave central y los brazos del crucero se cubren con bóveda de medio cañón con lunetos. Las laterales lo hacen con bóvedas de arista. El crucero, con cúpula sobre pechinas, se manifiesta al exterior con un tambor octogonal. El coro, a los pies del templo, se apoya en cuatro columnas. Conserva la entrada por el lado sur, debido a la situación de la torre a los pies del templo, en el centro de la nave.

Obra de finales del siglo XVII, fue edificada a partir del mandato de 1663. En 1688 todavía duraban las obras. Se ignora su constructor. Las naves presentan al exterior un enlucido poco frecuente.

Es posible que hacia 1733 hubiera obras tal como lo indica la capitulación matrimonial del Maestro de Obras Miguel Juan Garcella, de fecha 13-III. En ella su padre Juan Francisco Garcella lo admite en las fábricas de Barrachina y Caminreal. Se desconoce el alcance de las mismas.

A partir de 1774 se reedificó en parte. Posiblemente el actual crucero sea de esa época presentando un cambio en la construcción de mampostería, que aparece en este caso sin el enlucido exterior.


Elementos destacables

  • De la decoración interior destacan los bajorrelieves de los Santos Padres que aparecen en las pechinas, así como las interesantes puertas de la sacristía realizadas en el siglo XVII.
  • La mayoría de las piezas de orfebrería que guarda el templo parroquial se labraron en el siglo XVI. El conjunto está compuesto por una cruz procesional en metal dorado de la primera mitad del siglo, una cruz darocense en plata del segundo cuarto del siglo, ambas platerescas, un copón arqueta en plata de finales del XVI, plateresco también, y la crismera en plata de las mismas fechas pero ya renacentista. Del siglo XVIII son dos piezas de plata: una custodia barroca de comienzos de siglo y un relicario rococó fechado en 1759, que contiene reliquias de los Innumerables Mártires de Zaragoza llegados a Barrachina por la devota donación de fray José Gómez, del Real Monasterio de Santa Engracia de Zaragoza.

Bibliografía

Calvo Latorre, Miguel Ángel (2023). Guía de la Iglesia parroquial de la Asunción de Nuestra Señora de Barrachina. Archivo:Iglesia barrachina.pdf